
Πολυκατοικία 500 τμ στην Γλυφάδα , Μιλτιάδου 64
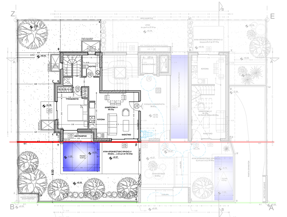
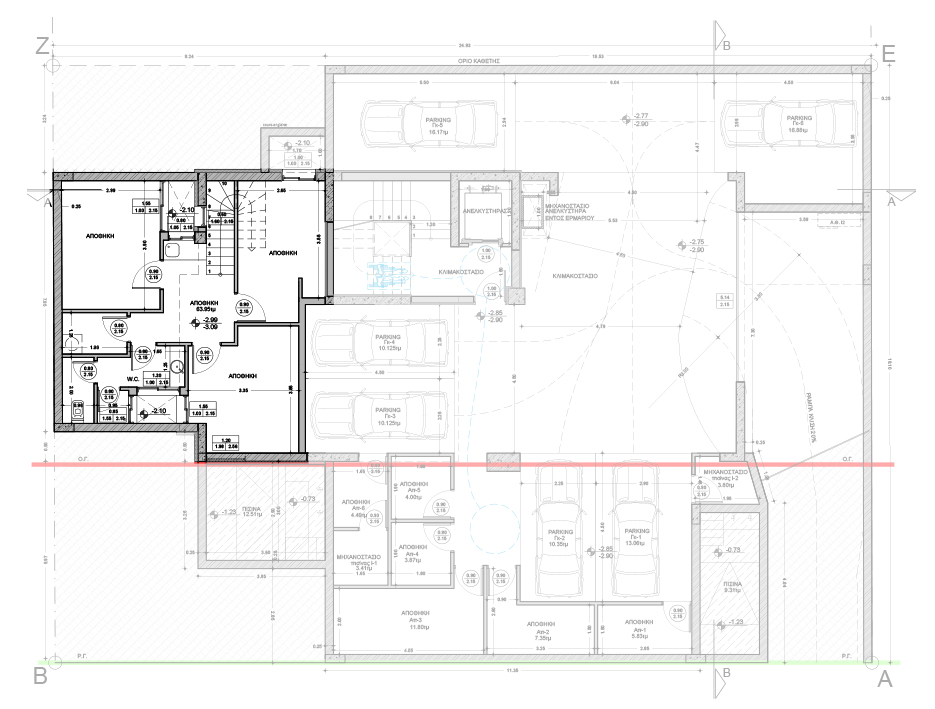
Διαμέρισμα Ι-1
Μεζονέτα ισογείου 56.73τμ με υπόγειο 63.95τμ. Διαθέτει αποκλειστική χρήση κήπου με πισίνα.
Διαθέσιμο
Ενεργειακή κλάση



Κατόψεις


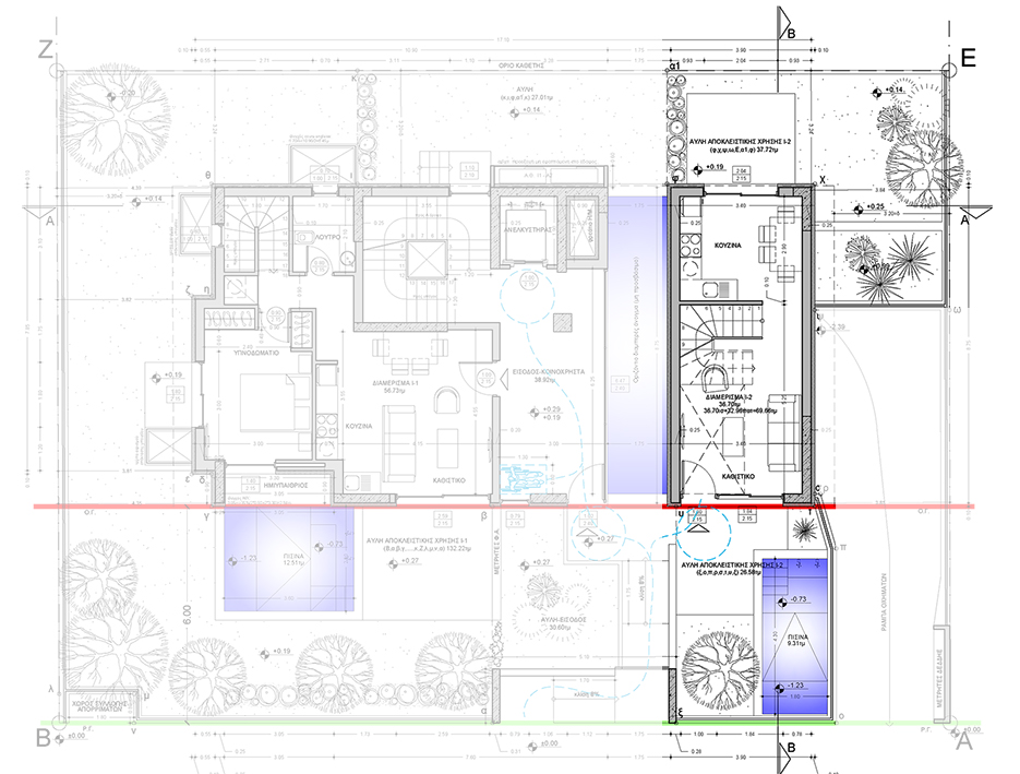
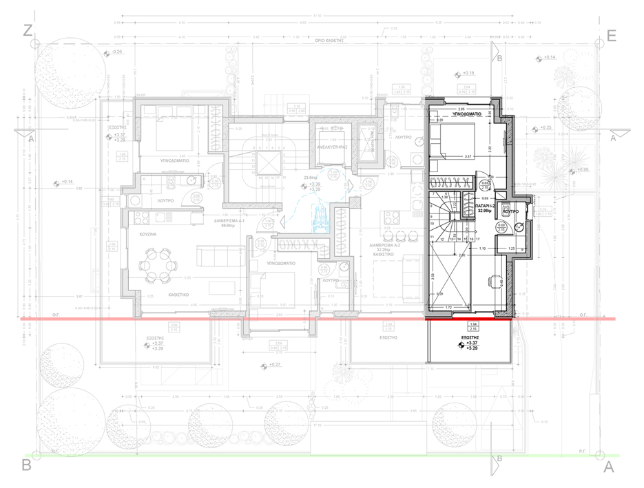
Διαμέρισμα Ι-2
Μεζονέτα ισογείου με πατάρι 69.66τμ. Διαθέτει αποκλειστική χρήση κήπου με πισίνα. Περιλαμβάνει ένα υπνοδωμάτιο σε πατάρι, καθιστικό και κουζίνα σε ισόγειο. 1 λουτρό.
Μη Διαθέσιμο
Ενεργειακή κλάση



Κατόψεις


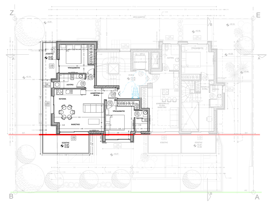
Διαμέρισμα A-1
Διαμέρισμα Α ορόφου 68.94τμ. Μεγάλη βεράντα, 2 υπνοδωμάτια εκ των οποίων το ένα με en suite λουτρό. Τρίφατσο.
Διαθέσιμο
Ενεργειακή κλάση




Κάτοψη

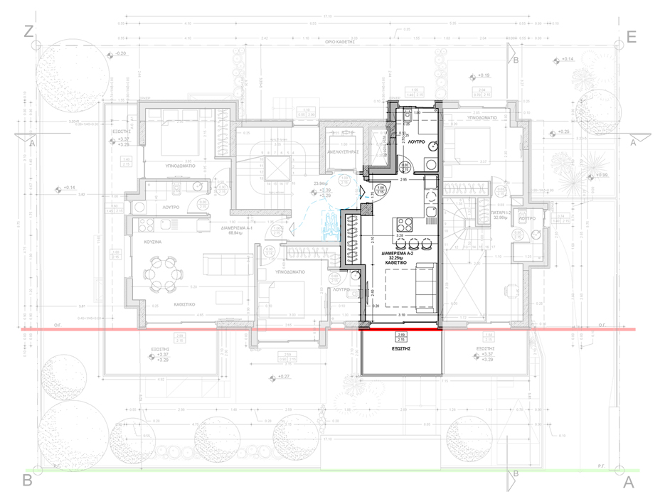
Διαμέρισμα A-2
Διαμέρισμα Α ορόφου 32.25τμ. Μεγάλη βεράντα. Διαμπερές.
Μη Διαθέσιμο
Ενεργειακή κλάση




Κάτοψη

Διαμέρισμα Β-1
Οροφοδιαμέρισμα Β ορόφου με πισίνα 93.94τμ. Μεγάλες βεράντες και ταράτσα με πισίνα, 2 υπνοδωμάτια master, WC, μεγάλο ενιαίο καθιστικό-τραπεζαρία-κουζίνα.
Μη Διαθέσιμο
Ενεργειακή κλάση




Κάτοψη

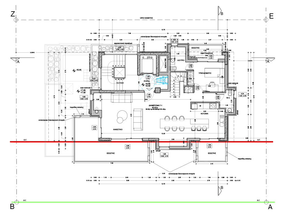
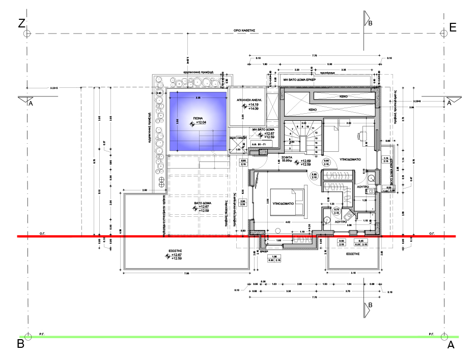
Διαμέρισμα Γ-1
Μαιζονέτα Γ ορόφου με σοφίτα και πισίνα 151.45τμ. Μεγάλες βεράντες, αποκλειστική χρήση ταράτσας με πισίνα, 3 ΥΔ με en suite λουτρό, WC, μεγάλος ενιαίος χώρος καθιστικού-τραπεζαρίας-κουζίνας.
Διαθέσιμο
Ενεργειακή κλάση




Κατόψεις




